Plazatio

Workcenter México

Mérida . Yucatán . México

Detalles del proyecto

Tipo: Edificación, obra nueva
Superficie construida (m2): 740

Info

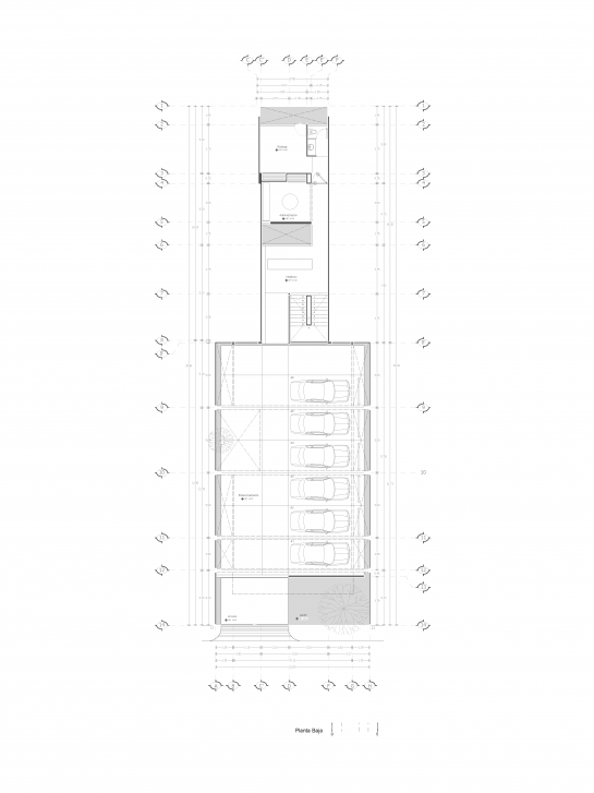
Imágenes realizadas por Onnis Luque. El edifico se desarrolla en un terreno irregular de poco más de 360 m2 en una avenida de la ciudad de Mérida que se encuentra en constante cambio de uso de suelo, pasando de ser habitacional a consolidarse como un polo de interés comercial y sobre de todo de oficinas. En un principio nuestro cliente nos encarga un edificio de departamentos, pero al ver las características de la avenida y la zona en general, se le propone cambiar la tipología del proyecto a algo más adecuado para estas características. Decidimos plantearle al cliente un edificio de oficinas, tipo “co-working" “Desde hace algunos años están aumentando las ofertas de coworking, una iniciativa que brinda la oportunidad de alquilar espacios de trabajo e infraestructura durante meses, semanas, días o incluso horas a profesionales independientes, artistas y pequeñas empresas emergentes. Esto no solo les permite ahorrar en los elevados costos fijos que supone un lugar de trabajo permanente, sino que, a menudo, los coworking spaces se convierten en un lugar donde nace de forma manifiesta un dinamismo interdisciplinar, fructífero e interactivo, que sirve de caldo de cultivo para nuevas ideas”. VITRA La primera estrategia al tener un terreno irregular y aprovecharlo de la mejor manera fue dividir el programa en dos partes. En la parte posterior del predio, donde el terreno es más angosto, se concentran todos los espacios de servicios como recepción, oficinas de administración, site, baños y cafetería y hacia el frente del predio, donde el terreno es más amplio se concentran las áreas habitables de oficinas “co-work”, salón de usos múltiples, salas de junta, etc. Esta misma estrategia fue llevada a la constructividad del edificio, en el área de servicios la estructura es a base de muros de block de concreto y losas de vigueta y bovedilla. Y por otro lado, debido al claro que necesitábamos en planta baja, se decide cambiar la estructura a una metálica. De esta forma cuatro marcos estructurales de acero se desplantan transversalmente y soportan las diferentes losas en los tres niveles, logrando tener una planta libre hacia el interior para el mejor aprovechamiento de los espacios de oficina, y que a su vez dan la forma y la estética al edificio. Las circulaciones verticales se sitúan en la intersección entre estos dos volúmenes, de servicios y oficinas, conectando todos los espacios. Hacia el interior del edificio se proponen entradas de luz para dotar de iluminación natural a todos los espacios y hacia la avenida se proponen volados y terrazas para disminuir la incidencia solar hacia el interior de las oficinas y lograr tener una vista panorámica hacia la ciudad. Con respecto al mobiliario, conociendo las exigencias de los usuarios se les propone una solución funcional, que satisfaga sus necesidades y que les transmita, al mismo tiempo, una sensación acogedora gracias a un equipamiento adecuado. El mobiliario fijo partió de la misma idea del edificio, hecho a base de estructura metálica expuesta y madera.

más info

publicado el 20/06/2016

Comentarios (0)

Proyecto promovido por:
CTAA . Colegio Territorial de Arquitectos de Alicante

 

Colegios asociados a Plazatio

Colegio Territorial de Arquitectos de Alicante Colegio Territorial de Arquitectos de Castellón Colegio Territorial de Arquitectos de Valencia Colegio Oficial de Arquitectos de la Comunidad Valenciana

Ver vídeo de Youtube
add
Top